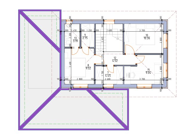
110.66
110.66
3
19.10
17.50
2
Сучасний двоповерховий будинок у класичному стилі з чотирисхилим дахом. Фасад має виразний дизайн завдяки контрастному оздобленню: перший поверх виконаний з використанням темної клінкерної цегли, а другий — зі світлої штукатурки з дерев'яними акцентами під дахом.
• Загальні дані архітектурних рішень;
• Маркувальний план 1-го поверху;
• План з розташуванням меблів;
• План кладки;
• План даху;
• Фасади будівлі (4 проєкції);
• Розрізи будівлі;
• План підлог;
• Вентканали (якщо цегла);
• Експлікація приміщень поверхів;
• Відомість перемичок;
• Відомість отворів;
• Специфікація до плану кладки;
• Відомість зовнішнього оздоблення фасадів будинку;
• Відомість заповнення віконних та дверних отворів;
• Експлікація підлог;
• Вузли - перерізи по стінам, влаштування перемички, коньковий гребінь, примикання до димової труби, підшивки покрівлі, влаштування дерев'яної обшивки, армування тераси, спирання перегородки на плиту підлоги 1-го поверху, спирання зовнішньої стіни на фундамент.
• Загальні дані конструктивних рішень;
• Схеми розташування монолітних фундаментів;
• Схеми розташування збірних фундаментів;
• Креслення виконання монолітних елементів збірних фундаментів;
• Схеми розташування колон;
• Креслення виконання монолітних колон;
• Схеми розташування монолітних поясів;
• Схеми розташування закладних деталей;
• Схеми розташування елементів перекриття;
• Схеми розташування елементів даху;
• Специфікації до схеми розташування монолітних фундаментів;
• Специфікації до схеми розташування збірних фундаментів;
• Специфікації до виконання монолітних елементів збірних фундаментів;
• Специфікації до схеми розташування колон;
• Специфікації до креслень монолітних колон;
• Специфікації до армування монолітного поясу;
• Специфікації до закладних деталей;
• Специфікації елементів перекриття;
• Специфікації до схеми розташування елементів даху;
• Відомість деталей монолітних фундаментів;
• Відомість деталей армопоясів;
• Відомість деталей закладних деталей;
• Відомість деталей монолітних елементів збірних фундаментів;
• Відомість деталей монолітних колон;
• Вузли - переріз монолітних фундаментів;
• Вузли - влаштування фундаменту;
• Вузли - перерізи монолітних армопоясів;
• Вузли - переріз монолітних колон;
• Вузли - закладних деталей;
• Вузли - стикування балок перекриття;
• Вузли - Розріз 1-1 даху. Вузли даху;
• Вузли - Розріз 2-2 даху.
Інженерний розділ можна придбати за додаткову оплату. Його вартість становить 50% від вартості архітектурно-будівельної частини, зазначеної на сторінці проєкту.
• Система опалення (плани, схема, специфікація обладнання і матеріалів);
• Система водопостачання та каналізації (план, схема, специфікація обладнання і матеріалів;
• Силові електричні мережі;
• Детальний опис і характеристики всіх елементів інженерних систем.
Адаптація фундаменту проводиться на підставі результатів інженерно-геологічних досліджень. Типовий проєкт розрахований на середні показники, але часто геологічні особливості земельної ділянки можуть вплинути на конструктив фундаменту.
У будинку ми проводимо більшу частину життя – це правило справедливе для переважної більшості людей. Дизайн інтер'єру – це особливе мистецтво зробити більшу частину життя кращим, наповнити його комфортом та затишком.
Підключення високошвидкісного Інтернету та кабельного телебачення.
Цей пакет стане чудовою підмогою для контролю та перевірки дій підрядників на всіх етапах будівельних робіт: від улаштування фундаменту до зведення покрівлі та оздоблення приміщень.
Будівництво будинку варто розпочинати лише після отримання всіх необхідних дозволів. Інакше це загрожує штрафами.
З якою надією на краще майбутнє ми вибираємо власний будинок! Як ретельно ми досліджуємо наші потреби та бажання, адже такий вибір робимо один раз у житті.
Інженерно-геологічні дослідження проводяться з метою визначення особливостей земельної ділянки та несучої здатності ґрунту. Саме дані геології є основою міцного фундаменту.
Геодезичне дослідження вирішує питання площі ділянки і її точні геодезичні розміри, географічні координати та особливості рельєфу. Визначення перепадів висот на ділянці, що впливають на майбутній проєкт будівель і інженерних споруд.
Погодьтеся, гарний будинок на голій ділянці виглядає незакінчено та незатишно. Так само незатишно почуваються й господарі.
Відомість матеріалів — це повний перелік всього, що потрібно для будівництва будинку. У цьому документі зазначено абсолютно все до останнього цвяха! Завдяки повній деталізації, точному розрахунку всіх будівельних матеріалів, ви зможете поставити на буд майданчик все необхідне без надлишкових витрат або недобору.
Впевненість у зовнішньому вигляді - це впевненість в собі та відмінний настрій :-) Для будинку це так само важливо як і для людини, і ризикувати зовнішнім виглядом будинку може дорого коштувати. Ми зробимо для вашого будинку "одяг" самий гідний, за допомогою послуги "Дизайн екстер'єру": розробимо дизайн екстер'єру і візуалізуємо його в 3D.
|
НУЛЬОВИЙ ЦИКЛ (ФУНДАМЕНТ) |
||
|
*Фундамент на палях:
|
Фундамент стрічковий з блоків ФБС:
|
Фундамент стрічковий з блоків незнімної опалубки:
|
Можливо будівництво альтернативних видів фундаменту, наприклад УШП, плитний і.т.п, згідно з побажаннями клієнта та за підтвердженням конструктора.
|
СТІНИ |
|
|
|
Можливо будівництво альтернативних видів стін, наприклад газобетон D500 товщина 375 (400 мм), цегла керамічна товщина 250, 380, 510 мм і.т.п, згідно з побажаннями клієнта та за підтвердженням конструктора.
|
ПЕРЕКРИТТЯ ПЕРШОГО ПОВЕРХУ |
||
|
|
|
Можливо будівництво альтернативних видів перекриття, наприклад незнімна опалубка TERIVA і.т.п, згідно з побажаннями клієнта та за підтвердженням конструктора.
|
ПЕРЕКРИТТЯ ДРУГОГО ПОВЕРХУ |
||
|
|
|
Можливо будівництво альтернативних видів перекриття, наприклад незнімна опалубка TERIVA і.т.п, згідно з побажаннями клієнта та за підтвердженням конструктора.
|
СХОДИ НА ДРУГИЙ ПОВЕРХ |
|||
|
|
ПОКРІВЛЯ |
|
|
|
Можливо будівництво альтернативних видів покрівлі, наприклад керамічна плитка, компазитна черепиця і.т.п, згідно з побажаннями клієнта та за підтвердженням конструктора.
*Оптимальна вартість, включина в ціну будівництва коробки будинку.
|
ВІКНА ТА ВХІДНА ГРУПА |
|
|
|
Можливо будівництво альтернативних видів вікон та дверей, наприклад дерево, алюміній, дерев'яний масив і.т.п, згідно з побажаннями клієнта та за підтвердженням конструктора.
|
ФАСАД |
|
|
|
Можливо будівництво альтернативних видів фасаду, наприклад облицювальна цегла, вентильований фасад і.т.п, згідно з побажаннями клієнта та за підтвердженням конструктора.
|
ПОКРІВЛЯ |
|
|
|
Можливо будівництво альтернативних видів покрівлі, наприклад дерев'яна вагонка і.т.п, згідно з побажаннями клієнта та за підтвердженням конструктора.
*Оптимальна вартість.
|
СТІНИ |
|
|
|
Можливо будівництво альтернативних видів простінків, наприклад гіпсокартон і.т.п, згідно з побажаннями клієнта та за підтвердженням конструктора.
|
САНТЕХНІКА |
|
|
|
Можливо будівництво альтернативних видів опалення, наприклад теплі стіни і.т.п, згідно з побажаннями клієнта та за підтвердженням конструктора.
|
ЕЛЕКТРИКА |
СТЯЖКА І ШТУКАТУРКА |
|
|
| Можливо будівництво альтернативних видів електрики, наприклад прокладка зовнішніх декоративних кабелів і.т.п, згідно з побажаннями клієнта та за підтвердженням конструктора. | Можливо будівництво альтернативних видів тинькування одночасно декоративним шаром і.т.п, згідно з побажаннями клієнта та за підтвердженням конструктора. |
|
ПЕРЕКРИТТЯ ДРУГОГО ПОВЕРХУ |
|
|
|
Можливо будівництво альтернативних видів перекриття, наприклад незнімна опалубка TERIVA і.т.п, згідно з побажаннями клієнта та за підтвердженням конструктора.
*Оптимальна вартість.
|
САНТЕХНІКА |
ЕЛЕКТРИКА |
|
|
|
ФІНІШНЕ ОЗДОБЛЕННЯ ПІДЛОГ |
ФІНІШНЕ ОЗДОБЛЕННЯ СТІН |
|
|
|
ФІНІШНЕ ОЗДОБЛЕННЯ СТЕЛІ |
ДВЕРІ, ВІКНА ТА СХОДИ |
|
|
Спеціалісти компанії Dniprobud виконують оздоблення з будь-яких матеріалів відповідно до ваших вподобань.
Швидкий перегляд
116.86
4+
13.40
19.60
2
Швидкий перегляд
115.47
3
2
Швидкий перегляд
110.61
3
15.04
17.04
2