211.52
211.52
4+
22.90
24.56
3+
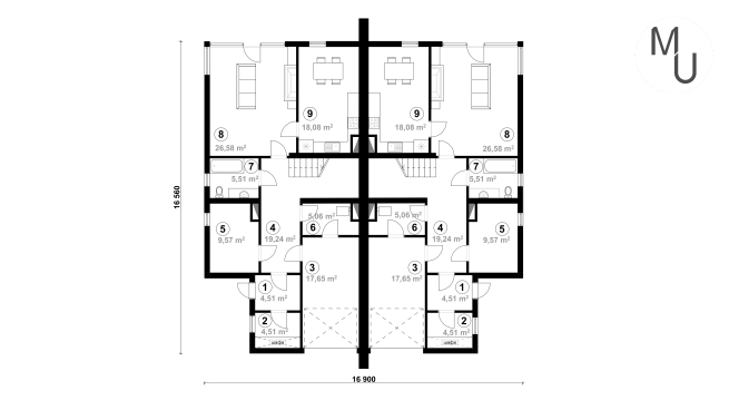
Двоповерховий дуплекс, ідеальний для двох сімей, що шукає комфортне та стильне житло. Кожна секція будинку має окремий вхід, власний гараж, терасу та балкон, що забезпечує повну автономність. Архітектурна форма навіяна європейським стилем, з використанням комбінованих фасадних матеріалів: світла штукатурка та дерев’яні панелі. Кожна половина будинку має по два балкони, що дозволяє насолоджуватися краєвидами в різні пори дня.
• Плани поверхів;
• План підлог;
• План покрівлі;
• Фасади;
• Розрізи;
• Специфікації вікон;
• Візуалізації;
• Загальні дані.
• Конструктивні рішення фундаментів;
• План обробки підлог;
• План перекриттів;
• План даху;
• Креслення окремих вузлів і деталей;
• План монолітних поясів та розміщення перемичок;
• Специфікації виробів і матеріалів (конструктивні вузли і деталі, перекриття, покрівля);
• Загальні дані.
Компанія Z500 пропонує розширити можливості типових проєктів та адаптувати їх до своїх умов.
Адаптація фундаменту проводиться на підставі результатів інженерно-геологічних досліджень. Типовий проєкт розрахований на середні показники, але часто геологічні особливості земельної ділянки можуть вплинути на конструктив фундаменту.
Швидке та легке будівництво будинку. Наявність проєкту у кількох професіоналів одразу. Полегшення роботи конструктора, що адаптує проєкт.
Швидка заміна пошкоджених або втрачених документів.
Ви вже обрали проєкт удома? Ви розпочали детальний план його реалізації? Якщо так, тоді ви вже думали про відповідну систему опалення!
Щоб захистити Ваш будинок від удару блискавки, потрібен певний комплекс заходів. Він включає встановлення пристроїв захисту від прямих ударів блискавки та вторинних її впливів - різких змін електричної напруги.
Підключення високошвидкісного Інтернету та кабельного телебачення.
Цей пакет стане чудовою підмогою для контролю та перевірки дій підрядників на всіх етапах будівельних робіт: від улаштування фундаменту до зведення покрівлі та оздоблення приміщень.
Будівництво будинку варто розпочинати лише після отримання всіх необхідних дозволів. Інакше це загрожує штрафами.
З якою надією на краще майбутнє ми вибираємо власний будинок! Як ретельно ми досліджуємо наші потреби та бажання, адже такий вибір робимо один раз у житті.
Послуга «Адаптація проекту до сейсмозони» дозволить адаптувати практично будь-який наш проект навіть для найнебезпечніших ділянок, дозволених для житлової забудови.
Доповнення комфортний будинок зробить ваш будинок влітку прохолоднішим, взимку теплішим, ви зможете легко керувати його мікрокліматом. У будь-яку погоду та пору року ви почуватиметеся комфортно та затишно!
Інженерно-геологічні дослідження проводяться з метою визначення особливостей земельної ділянки та несучої здатності ґрунту. Саме дані геології є основою міцного фундаменту.
Геодезичне дослідження вирішує питання площі ділянки і її точні геодезичні розміри, географічні координати та особливості рельєфу. Визначення перепадів висот на ділянці, що впливають на майбутній проєкт будівель і інженерних споруд.
Погодьтеся, гарний будинок на голій ділянці виглядає незакінчено та незатишно. Так само незатишно почуваються й господарі.
Інженерний розділ містить у собі проекти всіх інженерних споруд та комунікацій: система водопостачання та каналізації, електромережа, вентиляційна система, система опалення. При необхідності в цьому розділі розміщують креслення протипожежної та охоронної сигналізації.
Відомість матеріалів — це повний перелік всього, що потрібно для будівництва будинку. У цьому документі зазначено абсолютно все до останнього цвяха! Завдяки повній деталізації, точному розрахунку всіх будівельних матеріалів, ви зможете поставити на буд майданчик все необхідне без надлишкових витрат або недобору.
Впевненість у зовнішньому вигляді - це впевненість в собі та відмінний настрій :-) Для будинку це так само важливо як і для людини, і ризикувати зовнішнім виглядом будинку може дорого коштувати. Ми зробимо для вашого будинку "одяг" самий гідний, за допомогою послуги "Дизайн екстер'єру": розробимо дизайн екстер'єру і візуалізуємо його в 3D.
На плоскій покрівлі продовж всієї зими може зібратися великий обсяг снігу, частково криги, які для конструкції будинку небезпеку не являють (наші проєкти враховують максимально можливі снігові навантаження). Але для покрівельного покриття утворення криги небажане.
|
НУЛЬОВИЙ ЦИКЛ (ФУНДАМЕНТ) |
||
|
*Фундамент на палях:
|
Фундамент стрічковий з блоків ФБС:
|
Фундамент стрічковий з блоків незнімної опалубки:
|
Можливо будівництво альтернативних видів фундаменту, наприклад УШП, плитний і.т.п, згідно з побажаннями клієнта та за підтвердженням конструктора.
|
СТІНИ |
|
|
|
Можливо будівництво альтернативних видів стін, наприклад газобетон D500 товщина 375 (400 мм), цегла керамічна товщина 250, 380, 510 мм і.т.п, згідно з побажаннями клієнта та за підтвердженням конструктора.
|
ПЕРЕКРИТТЯ ПЕРШОГО ПОВЕРХУ |
||
|
|
|
Можливо будівництво альтернативних видів перекриття, наприклад незнімна опалубка TERIVA і.т.п, згідно з побажаннями клієнта та за підтвердженням конструктора.
|
ПЕРЕКРИТТЯ ДРУГОГО ПОВЕРХУ |
||
|
|
|
Можливо будівництво альтернативних видів перекриття, наприклад незнімна опалубка TERIVA і.т.п, згідно з побажаннями клієнта та за підтвердженням конструктора.
|
СХОДИ НА ДРУГИЙ ПОВЕРХ |
|||
|
|
ПОКРІВЛЯ |
|
|
|
Можливо будівництво альтернативних видів покрівлі, наприклад керамічна плитка, компазитна черепиця і.т.п, згідно з побажаннями клієнта та за підтвердженням конструктора.
*Оптимальна вартість, включина в ціну будівництва коробки будинку.
|
ВІКНА ТА ВХІДНА ГРУПА |
|
|
|
Можливо будівництво альтернативних видів вікон та дверей, наприклад дерево, алюміній, дерев'яний масив і.т.п, згідно з побажаннями клієнта та за підтвердженням конструктора.
|
ФАСАД |
|
|
|
Можливо будівництво альтернативних видів фасаду, наприклад облицювальна цегла, вентильований фасад і.т.п, згідно з побажаннями клієнта та за підтвердженням конструктора.
|
ПОКРІВЛЯ |
|
|
|
Можливо будівництво альтернативних видів покрівлі, наприклад дерев'яна вагонка і.т.п, згідно з побажаннями клієнта та за підтвердженням конструктора.
*Оптимальна вартість.
|
СТІНИ |
|
|
|
Можливо будівництво альтернативних видів простінків, наприклад гіпсокартон і.т.п, згідно з побажаннями клієнта та за підтвердженням конструктора.
|
САНТЕХНІКА |
|
|
|
Можливо будівництво альтернативних видів опалення, наприклад теплі стіни і.т.п, згідно з побажаннями клієнта та за підтвердженням конструктора.
|
ЕЛЕКТРИКА |
СТЯЖКА І ШТУКАТУРКА |
|
|
| Можливо будівництво альтернативних видів електрики, наприклад прокладка зовнішніх декоративних кабелів і.т.п, згідно з побажаннями клієнта та за підтвердженням конструктора. | Можливо будівництво альтернативних видів тинькування одночасно декоративним шаром і.т.п, згідно з побажаннями клієнта та за підтвердженням конструктора. |
|
ПЕРЕКРИТТЯ ДРУГОГО ПОВЕРХУ |
|
|
|
Можливо будівництво альтернативних видів перекриття, наприклад незнімна опалубка TERIVA і.т.п, згідно з побажаннями клієнта та за підтвердженням конструктора.
*Оптимальна вартість.
|
САНТЕХНІКА |
ЕЛЕКТРИКА |
|
|
|
ФІНІШНЕ ОЗДОБЛЕННЯ ПІДЛОГ |
ФІНІШНЕ ОЗДОБЛЕННЯ СТІН |
|
|
|
ФІНІШНЕ ОЗДОБЛЕННЯ СТЕЛІ |
ДВЕРІ, ВІКНА ТА СХОДИ |
|
|
Спеціалісти компанії Dniprobud виконують оздоблення з будь-яких матеріалів відповідно до ваших вподобань.