
art
Рекомендую! Поиски начал с прорабов, но им нужен проект в деталях. Даже при наличие проекта - у прорабов будут регулярные вопросы ( грозит суетой между архитектором и прорабом )! Поэтому выбор пал на Днипробуд - в их команде работают архитектор, прорабы, исполнители. Это очень ценно - все строительные процессы замкнуты и работа идет слаженно. Директор регулярно приезжает проверить результаты ответственных этапов стройки. В команде все приветливые - и прорабы и рабочие.
Способны сделать индивидуальный проект (оч важно!), воплотить его в жизнь и в дальнейшем сопровождать его!
Способны сделать индивидуальный проект (оч важно!), воплотить его в жизнь и в дальнейшем сопровождать его!
Db 9
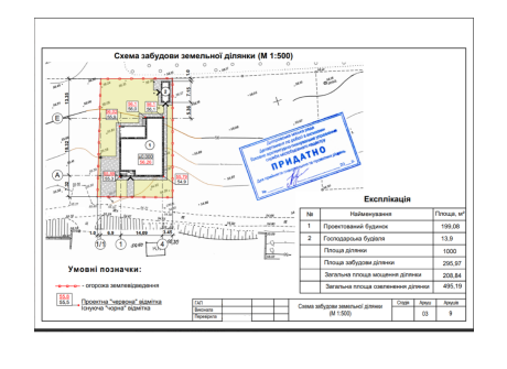
Подробнее об объекте
Год строительства:
2021
Общая площадь:
190.3
Мин. размер участка:
19.6
13.2
Количество спален:
4